
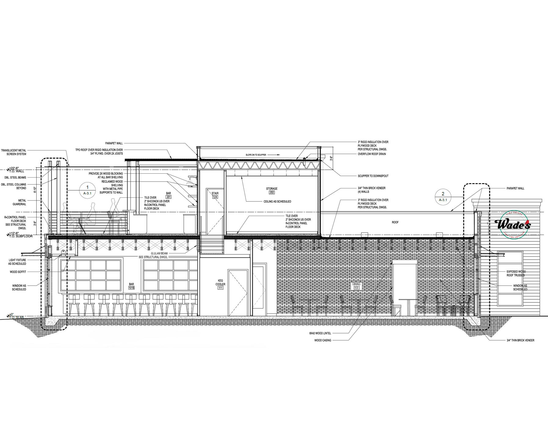
Beacon Hill, Athens GA - JB|RS Architecture | Project Manager (1 of 2)


Plant Dahlberg-Southern Power, Jackson County GA - JB|RS Architecture | Project Manager

Patio Addition, Hollywood FL | Design-Build

YMCA, Athens GA - E+E Architecture Inc | Design Development

Byrne House, Athens GA - E+E Architecture Inc | Construction Documents

Cambridge Creek Clubhouse, Clemson SC - E+E Architecture Inc | Project Manager (1 of 3)

Cambridge Creek Clubhouse (2 of 3)

Cambridge Creek Clubhouse (3 of 3)

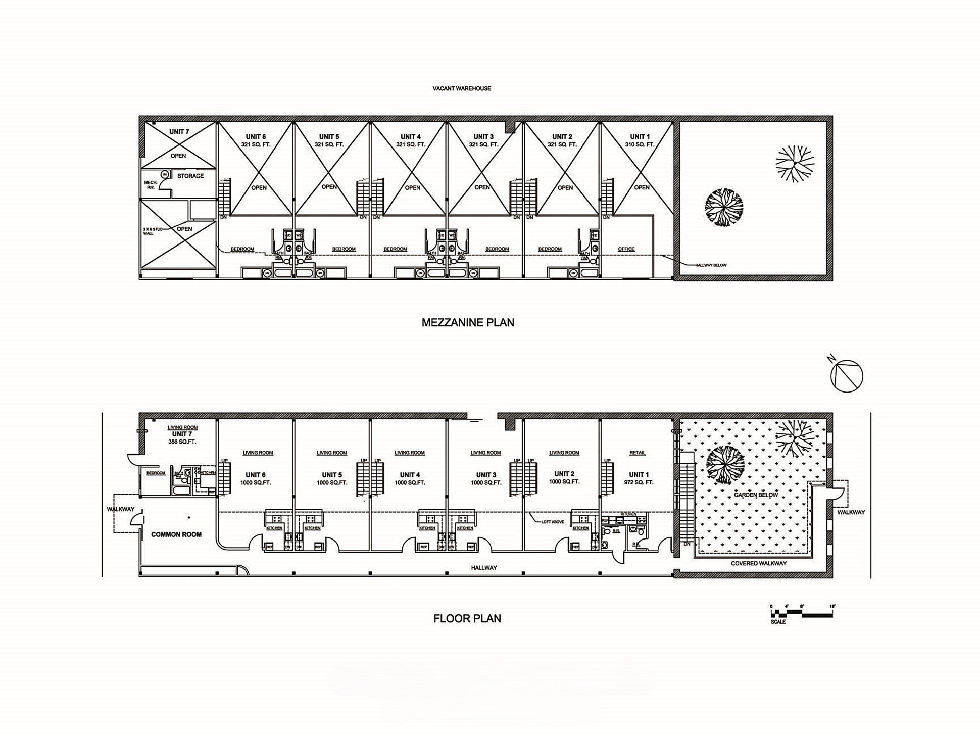
Orange Twin Conservation Community at Smokey Road, Athens GA - John d'Azzo (1 of 3)

Orange Twin Conservation Community - Master Plan (2 of 3)

Orange Twin Conservation Community - Common House (3 of 3)

Chase Park Gardens, Athens, GA - John d'Azzo | Designer (1 of 3)

Chase Park Gardens (2 of 3)

Chase Park Gardens (2 of 3)
ABOUT
John d'Azzo received a Master of Architecture from the San Francisco Institute of Architecture and a Bachelor of Architecture from Louisiana Tech University.John has practiced architecture with several firms and with his own company, in Berkeley/Oakland, California, and Athens, Georgia.He has taught drafting technology as an adjunct faculty at Athens Technical College and also has experience as a construction apprentice.
© 2024 John d'Azzo. All rights reserved.